
JACK WILLS
The Avenues | Kuwait
concept
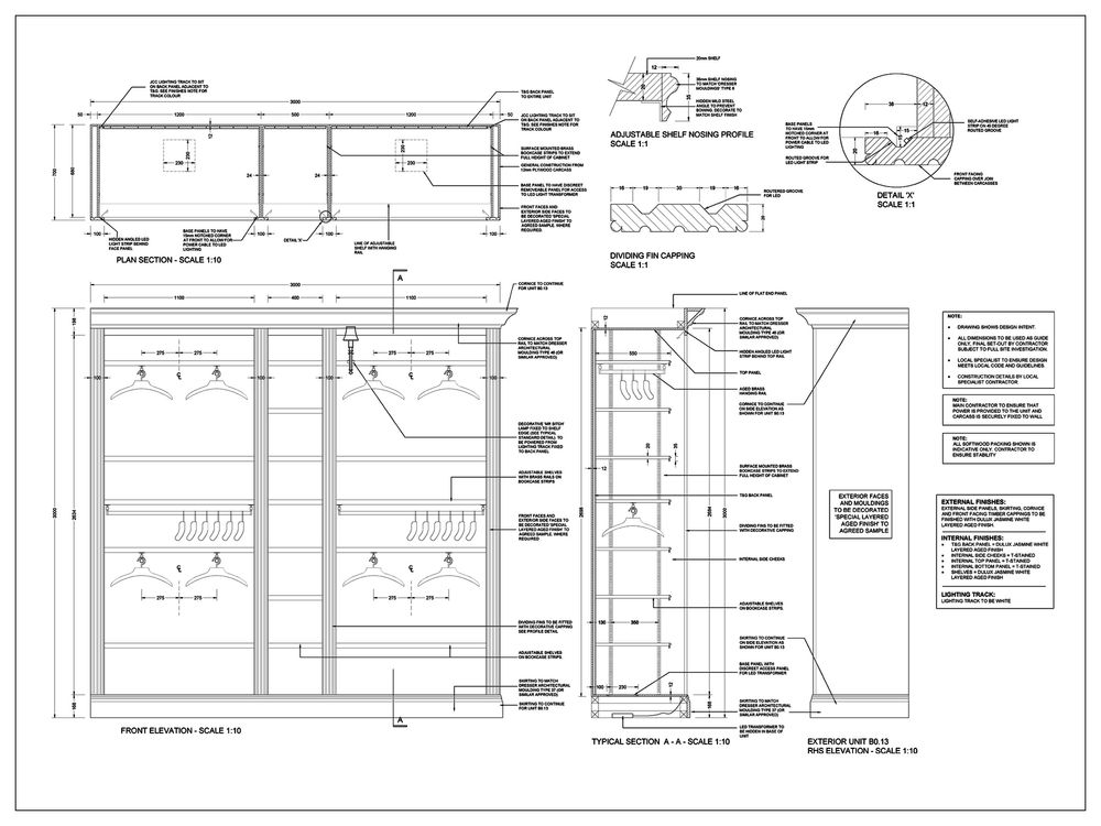
detail design
management
project
The grandest store in the biggest shopping centre in Kuwait was also Jack Wills' first store in the Middle East attracting customers throughout the region.
With a grand Georgian-inspired interior and an imposing, painstakingly detailed, facade the Jack Wills Avenues store kicked off the Middle East expansion plan with world-leading franchise partner, Alshaya.
A GRAND FACADE
The British townhouse inspired facade was reproduced in the most authentic of ways comprising of a grand timber double door entrance and an imposing, painstakingly detailed, facade constructed from actual reclaimed London bricks shipped from the UK.


ICONIC VISUAL MOMENTS
The quirky Jack Wills charm is on full display with big eccentric in-store displays delivering high-impact iconic moments.

BRITISH HERITAGE INTERIORS
Vintage style abounds in this grand retail space. Multiple rooms showcasing reclaimed antique parquet flooring, vintage wallpaper and tin tiled ceilings bring the brand and product to life.



A STAIRWAY TO...
Extra-wide with an opulent walkway landing and sweeping bottom flight, the grand timber-crafted staircase is signature a highlight of this theatrical store.
wide SWEEPING VISTAS
The staircase provides some of the best and most dynamic views of the space with its sweeping bottom flight and huge panoramic first-floor opening.


i like
a short walk
The panoramic first-floor gallery features a typically eccentric homage to British sentiment and modern culture.

an intriguing story
The sprawling layout and dynamically styled rooms create a fascinating journey that engages the customer and envelops them within the brand and its British heritage-inspired beginning.


Concept & specification pack
The store design was all-encompassing with extensive design, planning and detail work taking place in the UK to take the unfinished construction site shell through to concept, construction and opening.








